Einzigartige Luxus-Eigentumswohnung für höchste
Ansprüche im 1a-Kahlenbergviertel

Objektbeschreibung
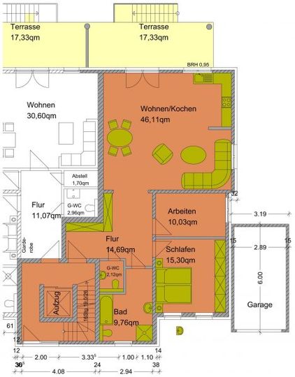
EG rechts. Große Fensterflächen garantieren viel Helligkeit in allen Räumen und somit Lebensqualität.Riesige Balkone/Terrassen, das "vierte Zimmer" an der frischen Luft. Von der Garage im Haus über den Aufzug in die Wohnung. Einkäufe und Sie selber bleiben trocken.
Ausstattung
Die Fenster und Fenstertüren werden als Kunststofffenster mit Dreischeibenisolierverglasung (Wärmeschutzglas K=1, 1) in der Sicherheitsklasse MK2 mit 8-fach Verriegelung ausgeführt und mit einbruchhemmendem Glas versehen.Alle Fenster erhalten elektrisch betätigte Kunststoffrollläden. Oberböden in allen Räumen werden wahlweise mit Keramikbelag oder Fertigparkett/Teppichboden belegt. Die Heizung wird in modernster Brennwerttechnik ausgeführt. Beheizung der Räume über Fußbodenheizung mit Raumthermostate. Zentrale Warmwasserversorgung über Speicher. Bäder, WC's und Duschen erhalten weiße, moderne Sanitärobjekte. Es werden Badewannen und bodengleiche Duschen mit Bodeneinlauf eingebaut.
Lage
Die Eigentumsanlage entsteht auf einem sehr ruhig gelegenen Sahne-Grundstück in allerbester Mülheimer-Wohnlage.
Sonstiges
Eine Käuferprovision wird nicht erhoben! Die im Haus befindlichen Garagen sind komplett verkauft. Der Kaufpreis für die Garage neben dem Haus beträgt € 12.000,-- Alle weiteren wichtigen Details über Ausstattung, Modalitäten etc. erfahren Sie in der zum Prospekt gehörenden, ausführlichen Bau-/Leistungsbeschreibung, die wir Ihnen gerne in einem persönlichen Gespräch übergeben. Unser Team hilft Ihnen gerne weiter. Wir freuen uns auf Ihren Anruf.
Kaufpreis: | 351.000,00 EUR |